產品展示
- 電話總機:400 8825788
- 傳真:0536-6512296
- 售后:13563697757
- 郵箱:250158177@qq.com
- 地址:山東省濰坊市諸城市龍都街道西外環路中段西側
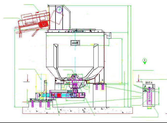
一、中濃制漿分選機:
立式中濃制漿分選機主要用于餐廚垃圾、廚余垃圾分選制漿使用,也廣泛適用于廢紙漿制漿的打漿過程。該設備轉子設計結構優良,推、擊、剪切力度大,水浪渦流強勁負壓大,出漿效果好,通過量大等優點。軸承采用國產名牌或者瑞典SKF、德國FAG精密軸承,確保機械運轉平穩可靠,使用壽命長。
該設備碎漿原理主要依靠設備槽體內中心安裝的,蓮花式分料平切轉子,高速旋轉時產生的強力渦流,將物料從上至下吸入、擊落在葉輪碎漿齒上,再由翻料齒快速推出,向四周甩出,強大的甩擊力量把物料摔到槽體的斜面錐體上,產生向上翻轉的渦流,筒體四周斜面錐體上焊有破碎撕裂齒,輔助加快原料的碎解。
篩板集漿室高于碎漿機底部,利于分離輕渣及硬物料,如鐵器、瓶蓋、骨頭、瓷器、玻璃渣對篩板及葉輪的磨損,同時防止該類物料打碎造成需要利用的生物質漿渣內產生不需要的該類渣料,影響銷售和使用。該類物料隨渦流甩出后很快沉入集渣室收集,以便后期單獨分離排出。該設備前端工藝配有滾筒式篩選機,所以象瓶蓋、塑料瓶、塑料袋、大骨頭、牛奶盒等大物料不會進入到制漿分選機內,大大減少了,該設備內的雜質。



















